Slide & Fold

Slide & Fold

Slide and Fold doors

Window Magic presents a whole range of exquisite slide and fold windows and doors for a wide range of applications. Whether you need to replace your old and monotonous looking door to a fresh and large bi-fold door; a slide and fold can add a lot of flexibility and make your entrance grand and welcoming. With more flexibility and comfort, the usability of slide and fold doors and windows can definitely add a new dimension to your homes and offices.

These days, custom wood and aluminium, glass slide and fold doors and windows are in vogue. This unique combination gives not only a dramatic effect, but makes your surroundings appear spacious and large.

Advantages

  • Best choice for structures having excellent surrounding
  • Available in countless contemporary designs
  • Add elegance and beauty
  • Offer safety with multiple lock systems

Color Options

Slide & Fold

Onmouseover (Scheme) show Diagram

  Min (mm) Max (mm)
  Width x Height Width x Height
Scheme - 321 2000 x 1800 2700 x 2400
Scheme - 330 2000 x 1800 2700 x 2400
Scheme - 431 2500 x 1800 3600 x 2400
Scheme - 532 3000 x 1800 4500 x 2400
Scheme - 540 3000 x 1800 4500 x 2400
Scheme - 541 3000 x 1800 4500 x 2400
Scheme - 633 3500 x 1800 5500 x 2400
Scheme - 651 3500 x 1800 5500 x 2400

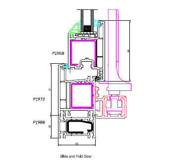
Profile Drawings

Installation

Photo Gallery

uPVC slide and fold doors slide and fold door Slide and fold windows double glazing price guide